BÁN/CHO THUÊ NHÀ XƯỞNG – KCN TRẢNG BÀNG, TÂY NINH – 30.930m²
An Lạc, Ninh Kiều, Cần Thơ
Thông tin mô tả
BÁN/CHO THUÊ NHÀ XƯỞNG – KCN TRẢNG BÀNG, TÂY NINH – 30.930m²
Thông tin chi tiết
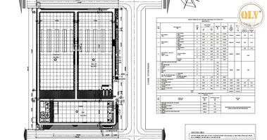
Vị trí: Khu Công Nghiệp Trảng Bàng, Tỉnh Tây Ninh
Tổng diện tích khuôn viên: 48.838m²
Diện tích xây dựng: 30.930m², bao gồm:
Xưởng 1: 12.728m²
Xưởng 2: 12.728m²
Xưởng 3: 5.474m²
Tiện ích & hạ tầng
Kết cấu nhà xưởng hiện đại, xây dựng kiên cố, đáp ứng tiêu chuẩn sản xuất công nghiệp
Hệ thống điện, nước, PCCC hoàn chỉnh theo tiêu chuẩn KCN
Đường nội bộ rộng, xe container ra vào thuận tiện
Nằm trong KCN Trảng Bàng – hạ tầng đồng bộ, an ninh đảm bảo, vị trí kết nối thuận lợi đến TP.HCM và cửa khẩu Mộc Bài
Phù hợp nhiều ngành nghề: sản xuất, kho bãi, logistics, hoặc đầu tư cho thuê dài hạn
Để biết thêm thông tin chi tiết vui lòng liên hệ:
CTY TNHH MTV QUÝ LỘC VƯỢNG
Hotline: 0931 769 444
Website: https://nhaxuongchinhchu.vn
Thông tin chi tiết
Vị trí: Khu Công Nghiệp Trảng Bàng, Tỉnh Tây Ninh
Tổng diện tích khuôn viên: 48.838m²
Diện tích xây dựng: 30.930m², bao gồm:
Xưởng 1: 12.728m²
Xưởng 2: 12.728m²
Xưởng 3: 5.474m²
Tiện ích & hạ tầng
Kết cấu nhà xưởng hiện đại, xây dựng kiên cố, đáp ứng tiêu chuẩn sản xuất công nghiệp
Hệ thống điện, nước, PCCC hoàn chỉnh theo tiêu chuẩn KCN
Đường nội bộ rộng, xe container ra vào thuận tiện
Nằm trong KCN Trảng Bàng – hạ tầng đồng bộ, an ninh đảm bảo, vị trí kết nối thuận lợi đến TP.HCM và cửa khẩu Mộc Bài
Phù hợp nhiều ngành nghề: sản xuất, kho bãi, logistics, hoặc đầu tư cho thuê dài hạn
Để biết thêm thông tin chi tiết vui lòng liên hệ:
CTY TNHH MTV QUÝ LỘC VƯỢNG
Hotline: 0931 769 444
Website: https://nhaxuongchinhchu.vn
Thông tin khác
Loại hình:
Kho bãi – nhà xưởng – KCN
Tình trạng pháp lý:
Chưa cập nhật
Liên hệ tư vấn