Cho thuê nhà xưởng KCN Đức Hòa, Long An 3.700m²
An Hòa, Ninh Kiều, Cần Thơ
Thông tin mô tả
Thông tin chi tiết
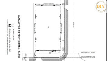
Vị trí: Khu công nghiệp Đức Hòa, Tỉnh Long An
Tổng diện tích khuôn viên: 5.300m²
Diện tích sử dụng
Diện tích nhà xưởng: 3.700m²
Văn phòng: 260m²
Trang bị điện: 560 kVA
Hiện trạng & quy mô công trình
Nhà xưởng xây dựng kiên cố, kết cấu chắc chắn, thông thoáng
Văn phòng bố trí riêng, thuận tiện quản lý sản xuất
Khuôn viên rộng rãi, xe tải và container ra vào dễ dàng
Pháp lý & hạ tầng
Pháp lý đầy đủ trong khu công nghiệp
Hạ tầng kỹ thuật hoàn chỉnh, sẵn sàng đưa vào vận hành
Tiện ích & lợi thế vị trí
Nằm trong KCN Đức Hòa – khu vực phát triển công nghiệp trọng điểm của Long An
Giao thông thuận tiện, kết nối nhanh đến TP.HCM và các khu vực lân cận
Phù hợp nhiều ngành nghề sản xuất, kho vận
Liên hệ
CÔNG TY TNHH MTV QUÝ LỘC VƯỢNG
Hotline: 0931 769 444
Website: https://nhaxuongmiennam.vn
Vị trí: Khu công nghiệp Đức Hòa, Tỉnh Long An
Tổng diện tích khuôn viên: 5.300m²
Diện tích sử dụng
Diện tích nhà xưởng: 3.700m²
Văn phòng: 260m²
Trang bị điện: 560 kVA
Hiện trạng & quy mô công trình
Nhà xưởng xây dựng kiên cố, kết cấu chắc chắn, thông thoáng
Văn phòng bố trí riêng, thuận tiện quản lý sản xuất
Khuôn viên rộng rãi, xe tải và container ra vào dễ dàng
Pháp lý & hạ tầng
Pháp lý đầy đủ trong khu công nghiệp
Hạ tầng kỹ thuật hoàn chỉnh, sẵn sàng đưa vào vận hành
Tiện ích & lợi thế vị trí
Nằm trong KCN Đức Hòa – khu vực phát triển công nghiệp trọng điểm của Long An
Giao thông thuận tiện, kết nối nhanh đến TP.HCM và các khu vực lân cận
Phù hợp nhiều ngành nghề sản xuất, kho vận
Liên hệ
CÔNG TY TNHH MTV QUÝ LỘC VƯỢNG
Hotline: 0931 769 444
Website: https://nhaxuongmiennam.vn
Thông tin khác
Loại hình:
Kho bãi – nhà xưởng – KCN
Tình trạng pháp lý:
Chưa cập nhật
Liên hệ tư vấn