CHO THUÊ NHÀ XƯỞNG KCN MỸ PHƯỚC, BẾN CÁT, BD 5.292m²
Ô Môn, Cần Thơ
Thông tin mô tả
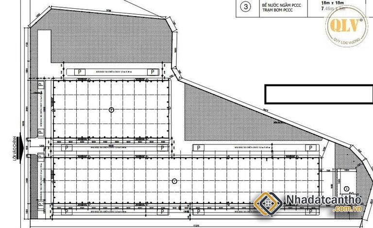
CHO THUÊ NHÀ XƯỞNG – KCN MỸ PHƯỚC, BẾN CÁT, BD – 5.292m²
Vị trí: Khu Công Nghiệp Mỹ Phước, TP. Bến Cát, Tỉnh Bình Dương
Tổng diện tích khuôn viên: 12.638m²
Tổng diện tích nhà xưởng: 5.292m²
Hiện trạng tài sản trên đất
Nhà xưởng 1: 3.312m²
Nhà xưởng 2: 1.800m²
Trang thiết bị & hạ tầng
Hạ tầng khu công nghiệp hoàn chỉnh, đường nội khu rộng rãi, xe container ra vào thuận tiện
Hệ thống điện, nước đáp ứng nhu cầu sản xuất
Hệ thống PCCC theo tiêu chuẩn KCN
Pháp lý
Loại đất: Đất khu công nghiệp
Pháp lý đầy đủ, cho thuê hợp pháp lâu dài
Đặc điểm & tiện ích
Nằm trong KCN Mỹ Phước – khu công nghiệp phát triển năng động tại Bình Dương
Kết nối thuận tiện Quốc lộ 13, tuyến Mỹ Phước – Tân Vạn, dễ dàng di chuyển về TP.HCM và các khu vực lân cận
Phù hợp nhiều ngành nghề sản xuất, kho vận, gia công
Liên hệ
CÔNG TY TNHH MTV QUÝ LỘC VƯỢNG
Hotline: 0931 769 444
Website: https://nhaxuongmiennam.vn/
Vị trí: Khu Công Nghiệp Mỹ Phước, TP. Bến Cát, Tỉnh Bình Dương
Tổng diện tích khuôn viên: 12.638m²
Tổng diện tích nhà xưởng: 5.292m²
Hiện trạng tài sản trên đất
Nhà xưởng 1: 3.312m²
Nhà xưởng 2: 1.800m²
Trang thiết bị & hạ tầng
Hạ tầng khu công nghiệp hoàn chỉnh, đường nội khu rộng rãi, xe container ra vào thuận tiện
Hệ thống điện, nước đáp ứng nhu cầu sản xuất
Hệ thống PCCC theo tiêu chuẩn KCN
Pháp lý
Loại đất: Đất khu công nghiệp
Pháp lý đầy đủ, cho thuê hợp pháp lâu dài
Đặc điểm & tiện ích
Nằm trong KCN Mỹ Phước – khu công nghiệp phát triển năng động tại Bình Dương
Kết nối thuận tiện Quốc lộ 13, tuyến Mỹ Phước – Tân Vạn, dễ dàng di chuyển về TP.HCM và các khu vực lân cận
Phù hợp nhiều ngành nghề sản xuất, kho vận, gia công
Liên hệ
CÔNG TY TNHH MTV QUÝ LỘC VƯỢNG
Hotline: 0931 769 444
Website: https://nhaxuongmiennam.vn/
Thông tin khác
Loại hình:
Kho bãi – nhà xưởng – KCN
Tình trạng pháp lý:
Chưa cập nhật
Liên hệ tư vấn