Cho thuê nhà xưởng Khu Công Nghiệp Mỹ Phước 5.292m²
Thốt Nốt, Cần Thơ
Thông tin mô tả
Cho thuê nhà xưởng – Khu Công Nghiệp Mỹ Phước – 5.292m²
Thông tin chi tiết
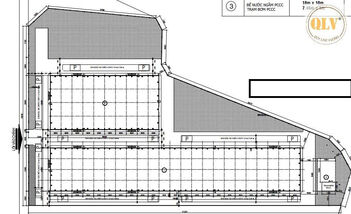
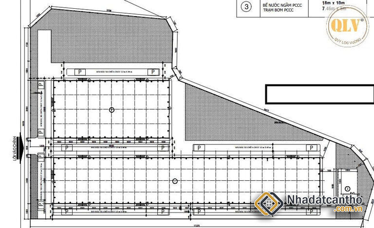
Vị trí: Khu Công Nghiệp Mỹ Phước, TP. Bến Cát, Tỉnh Bình Dương
Tổng diện tích khuôn viên: 12.638m²
Diện tích sử dụng
Diện tích nhà xưởng: 5.292m²
Xưởng 1: 3.312m²
Xưởng 2: 1.800m²
Hạ tầng kỹ thuật
Hạ tầng KCN hoàn chỉnh, điện nước ổn định, đáp ứng nhu cầu sản xuất
Đường nội khu rộng, xe container ra vào thuận tiện
Hiện trạng & quy mô công trình
Nhà xưởng xây dựng kiên cố, kết cấu thép chắc chắn
Không gian rộng, phù hợp bố trí nhiều ngành nghề sản xuất
Khuôn viên thoáng, thuận tiện lưu trữ và vận chuyển hàng hóa
Tiện ích & lợi thế vị trí
Nằm trong Khu Công Nghiệp Mỹ Phước – khu công nghiệp lớn, phát triển mạnh
Kết nối giao thông thuận lợi đến Quốc lộ 13 và các khu vực lân cận
Thu hút nhiều doanh nghiệp trong và ngoài nước, môi trường sản xuất chuyên nghiệp
Liên hệ
CÔNG TY TNHH MTV QUÝ LỘC VƯỢNG
Hotline: 0931 769 444
Website: https://nhaxuongmiennam.vn
Thông tin chi tiết
Vị trí: Khu Công Nghiệp Mỹ Phước, TP. Bến Cát, Tỉnh Bình Dương
Tổng diện tích khuôn viên: 12.638m²
Diện tích sử dụng
Diện tích nhà xưởng: 5.292m²
Xưởng 1: 3.312m²
Xưởng 2: 1.800m²
Hạ tầng kỹ thuật
Hạ tầng KCN hoàn chỉnh, điện nước ổn định, đáp ứng nhu cầu sản xuất
Đường nội khu rộng, xe container ra vào thuận tiện
Hiện trạng & quy mô công trình
Nhà xưởng xây dựng kiên cố, kết cấu thép chắc chắn
Không gian rộng, phù hợp bố trí nhiều ngành nghề sản xuất
Khuôn viên thoáng, thuận tiện lưu trữ và vận chuyển hàng hóa
Tiện ích & lợi thế vị trí
Nằm trong Khu Công Nghiệp Mỹ Phước – khu công nghiệp lớn, phát triển mạnh
Kết nối giao thông thuận lợi đến Quốc lộ 13 và các khu vực lân cận
Thu hút nhiều doanh nghiệp trong và ngoài nước, môi trường sản xuất chuyên nghiệp
Liên hệ
CÔNG TY TNHH MTV QUÝ LỘC VƯỢNG
Hotline: 0931 769 444
Website: https://nhaxuongmiennam.vn
Thông tin khác
Loại hình:
Kho bãi – nhà xưởng – KCN
Tình trạng pháp lý:
Chưa cập nhật
Liên hệ tư vấn