CHO THUÊ NHÀ XƯỞNG – PHƯỜNG BÌNH CHIỂU, TP. THỦ ĐỨC – 1.400m²
An Lạc, Ninh Kiều, Cần Thơ
Thông tin mô tả
CHO THUÊ NHÀ XƯỞNG – PHƯỜNG BÌNH CHIỂU, TP. THỦ ĐỨC – 1.400m²
Thông tin chi tiết
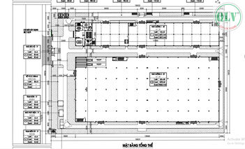
Vị trí: Phường Bình Chiểu, TP. Thủ Đức, TP.HCM
Tổng diện tích khuôn viên: 3.100m²
Diện tích xây dựng: 1.400m² (nhà xưởng kiên cố 2 tầng, mỗi tầng 700m²)
Diện tích đường nhựa nội bộ: 1.100m²
Đất trống còn lại: 1.300m²
Tiện ích & hạ tầng
Nhà xưởng xây dựng kiên cố, kết cấu bê tông cốt thép, thông thoáng, sạch đẹp
Có sân bãi rộng rãi, đường nội bộ trải nhựa, xe container ra vào thuận tiện
Hệ thống điện, nước đầy đủ, phù hợp cho nhiều ngành nghề
Vị trí trung tâm, kết nối nhanh đến Quốc lộ 1A, KCN Sóng Thần, Bình Dương và trung tâm TP.HCM
Phù hợp sử dụng làm: kho chứa hàng, xưởng sản xuất, gia công, logistics, phân phối hàng hóa…
Liên hệ
CTY TNHH MTV QUÝ LỘC VƯỢNG
Hotline: 0931 769 444
Website: https://nhaxuongchinhchu.vn
Thông tin chi tiết
Vị trí: Phường Bình Chiểu, TP. Thủ Đức, TP.HCM
Tổng diện tích khuôn viên: 3.100m²
Diện tích xây dựng: 1.400m² (nhà xưởng kiên cố 2 tầng, mỗi tầng 700m²)
Diện tích đường nhựa nội bộ: 1.100m²
Đất trống còn lại: 1.300m²
Tiện ích & hạ tầng
Nhà xưởng xây dựng kiên cố, kết cấu bê tông cốt thép, thông thoáng, sạch đẹp
Có sân bãi rộng rãi, đường nội bộ trải nhựa, xe container ra vào thuận tiện
Hệ thống điện, nước đầy đủ, phù hợp cho nhiều ngành nghề
Vị trí trung tâm, kết nối nhanh đến Quốc lộ 1A, KCN Sóng Thần, Bình Dương và trung tâm TP.HCM
Phù hợp sử dụng làm: kho chứa hàng, xưởng sản xuất, gia công, logistics, phân phối hàng hóa…
Liên hệ
CTY TNHH MTV QUÝ LỘC VƯỢNG
Hotline: 0931 769 444
Website: https://nhaxuongchinhchu.vn
Thông tin khác
Loại hình:
Kho bãi – nhà xưởng – KCN
Tình trạng pháp lý:
Chưa cập nhật
Liên hệ tư vấn